Informacije

  • Stan
  • 81 m2
  • 2
  • 2

Opis


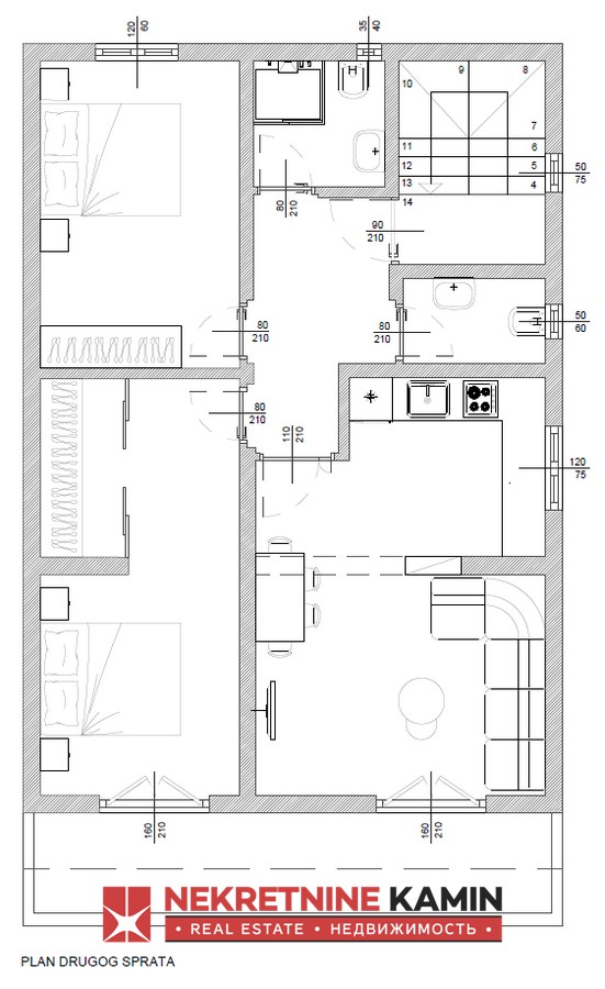
Na prodaju dvosoban stan u izgradnji s pogledom na more, Sutomore, Bar.

Sastoji se od predsoblja, dnevnog boravka s kuhinjom, dvije spavaće sobe s garderoberom, kupatila, toaleta i terase.

Dnevni boravak i velika spavaća soba imaju zajedničku terasu s koje se pruža lijep pogled na more i prirodu.

Stan zauzima površinu od 81 m2 i ima mogucnost nadogradnje.

Nalazi se na drugom spratu nisko-etažne zgrade i nije u potpunosti dovršen.

Nedostaju podovi, keramika, sanitarije, unutrašnja vrata i krečenje.

To daje mogućnost potencijalnim kupcima da enterijer izvedu prema svojim željama.

Krov objekta je djelimično ravan, prilagodjen za postavljanje solarnih kolektora.

U objektu je izvedena gruba instalacija vode, kanalizacije i elektro instalacije.

Objekat se nalazi u mirnom dijelu u naselju Zankovići, okružen prirodom.

Udaljen je oko 2000m od mora, a u blizini se nalazi i raskrsnica magistrale Podgorica-Petrovac-Bar.

Uz ovaj stan, na prodaju je i dvosoban stan površine 98 m2 na prvom spratu i pripadajuće zemljište od 84 m2.

Pripadajuće zemljiste predvidjeno je za parkiranje 3-5 automobila. Parking nije izgradjen.

Oba stana, na prvom i drugom spratu, imaju svoj ulaz, dok je vanjski ulaz zajednički.

Stanovi zajedno sa pripadajućim zemljištem, prodaju se zajedno ili pojedinačno.

Objekat je u postupku legalizacije. 

Cijena stana na I spratu: 34.000 €

Cijena stana na II spratu: 39.000€

Cijena pripadajućeg zemljišta: 14.000€

Karakteristike

  • Udaljenost od mora: 2000

Pogodnosti

  • Pogled na more

Pošaljite upit

 Marko Ristić

Marko Ristić

Agent prodaje

Pošaljite upit

 Marko Ristić

Marko Ristić

Agent prodaje