Informacije

  • Kuća
  • 180 m2
  • 4
  • 4

Opis


Na prodaju dio kuće (prvi i drugi sprat) u izgradnji s pogledom na more, Sutomore, Bar.

Kuća je grubo napravljena sa svim instalacijama ( voda, struja i kanalizacija) i spremna da se ubrzo završi od strane kupca.

Nedostaju podovi, keramika, sanitarije, unutrašnja vrata i krečenje.

To daje mogućnost potencijalnim kupcima da enterijer izvedu prema svojim željama.

Čitav objekat ima manji suteren, prizemlje, prvi i drugi sprat.

Krov objekta je djelimično ravan, prilagodjen za postavljanje solarnih kolektora.

Na prodaju su dva nivoa kuće ( prvi i drugi sprat) i postoji mogućnost nadogradnje.
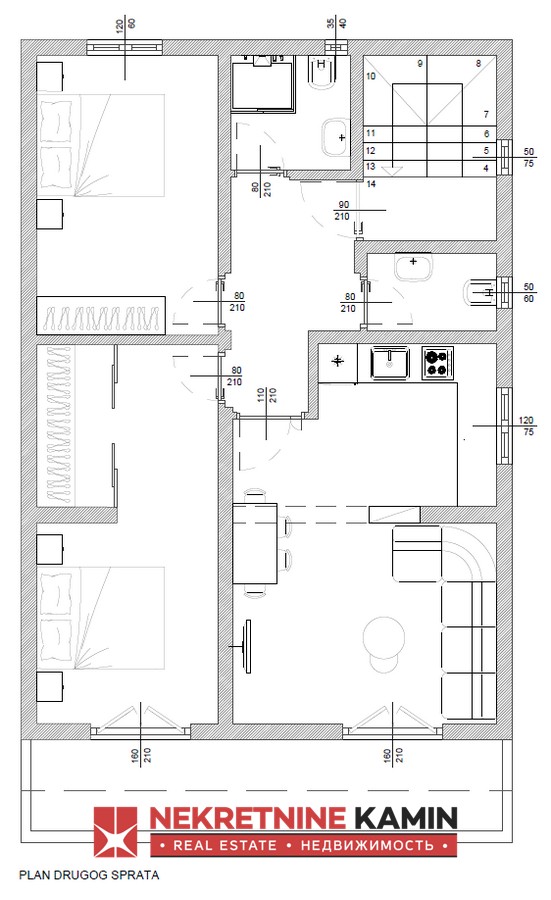
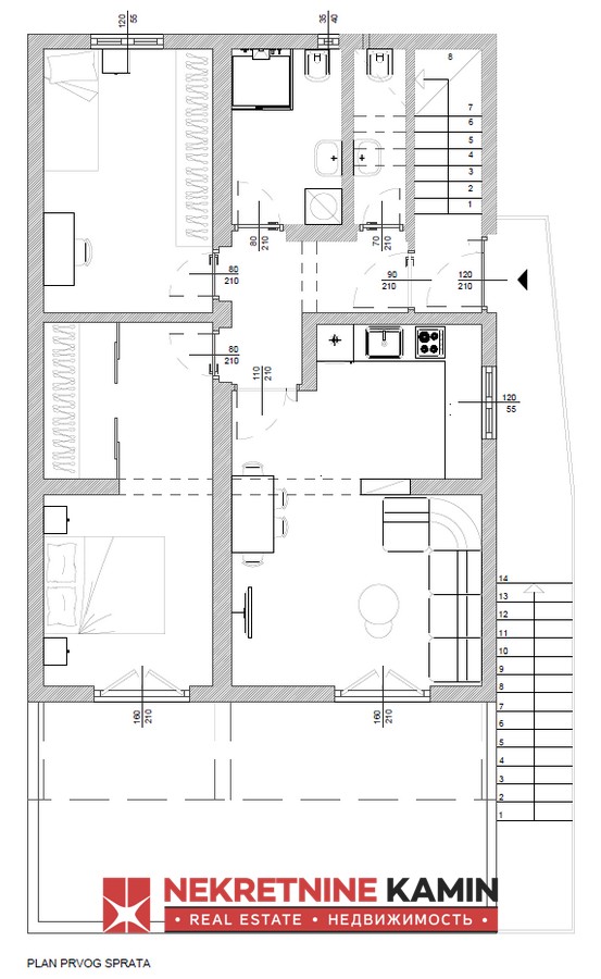
Na prvom i drugom spratu nalazi se po jedan dvosoban stan s pogledom na more i prirodu.

Svaki stan se sastoji od predsoblja, dnevnog boravka s kuhinjom, dvije spavaće sobe s garderoberom, kupatila, toaleta i terase.

Stan na prvom spratu zauzima površinu od 98 m2, dok stan na drugom spratu zauzima površinu od 81 m2.

Oba stana, na prvom i drugom spratu, imaju svoj ulaz, dok je vanjski ulaz zajednički.

Objekat se nalazi u mirnom dijelu u naselju Zankovići, okružen prirodom.

Udaljen je oko 2000m od mora, a u blizini se nalazi i raskrsnica magistrale Podgorica-Petrovac-Bar.

Uz ovaj objekat, na prodaju je i pripadajuće zemljište od 84 m2.

Pripadajuće zemljiste predvidjeno je za parkiranje 3-5 automobila. Parking nije izgradjen.

Prvi i drugi sprat zajedno sa pripadajućim zemljištem, prodaju se zajedno ili pojedinačno.

Objekat je u postupku legalizacije. 

Karakteristike

  • Udaljenost od mora: 2000

Pogodnosti

  • Pogled na more

Lokacija

Pošaljite upit

 Marko Ristić

Marko Ristić

Agent prodaje

Slične nekretnine

Pošaljite upit

 Marko Ristić

Marko Ristić

Agent prodaje